Introducció del producte
Les baranes de grues GB són components bàsics que porten la càrrega àmpliament utilitzats en el camp industrial. S’utilitzen principalment per a les pistes de funcionament de diversos tipus de grues de pont, grues de porteria i equips de càrrega i descàrrega de ports. Aquest tipus de ferrocarril és produït per un procés de rodatge calent convencional i té força i resistència al desgast. El seu disseny de secció transversal se centra en la pràctica i el cap de ferrocarril és lleugerament més ampli que els carrils de ferrocarril ordinaris per augmentar la zona de contacte amb la roda corrent.
Els carrils Qu120 poden suportar l’enorme càrrega de grues i assegurar l’operació estable de les grues. Per exemple, en plantes industrials com la fabricació de maquinària gran i la fabricació d’automòbils, s’utilitzen per instal·lar grues grans de pont, que necessiten elevar freqüentment equips pesats, parts, etc. També és una elecció habitual per a les pistes de grues de portes portuàries. Els ports han d’aixecar diversos contenidors grans, càrregues, etc. La capacitat de càrrega elevada i la resistència al desgast dels carrils Qu120 poden complir els requisits de les operacions freqüents de les grues de port i adaptar-se a l’entorn de treball dur dels ports. En la càrrega i descàrrega de material, el transport de minerals i altres enllaços de mines, les grues grans han de funcionar en carrils per completar les tasques d’elevació. Els carrils Qu120 poden suportar les pesades càrregues de grues mineres, resistir el desgast i l’impacte del mineral i altres materials a les baranes i augmentar la vida útil dels carrils.

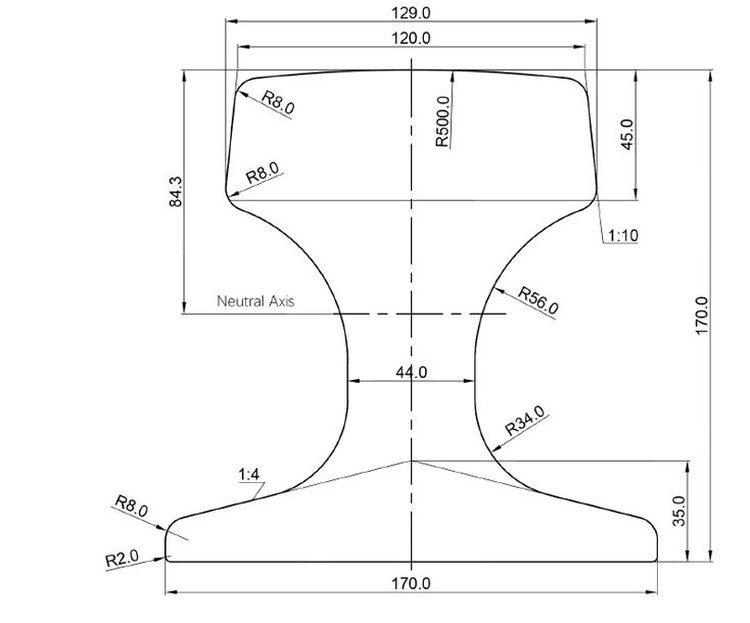
Especificacions del producte

Embalatge i lliurament de productes
L’embalatge adopta el clàssic esquema de protecció contra la rovilla. Després que la superfície de la barana es produeixi arenada o es removi químicament, es recobreix immediatament amb oli anti-rovell d'assecat ràpid. El paper anti-rovell s'utilitza per a la primera capa d'embolcall i la capa exterior s'embolica amb una pel·lícula de plàstic de 2 mm de gruix. L’agrupament adopta un esquema de forma “pou”, amb 4 cinturons d’acer longitudinals i 3 cables d’acer transversals per formar una xarxa fixa ferma. Aquest mètode d’embalatge té un cost raonable de material i és fàcil d’operar. És adequat per al transport d’exportació a gran escala i pot assegurar la integritat dels carrils durant el transport.

GNEE Rail és un proveïdor de serveis integrat per ferrocarril de GB GB professional, proporcionant als clients una gamma completa de serveis, des de la consulta de productes fins al suport postvenda. Els productes de la companyia cobreixen una varietat d’especificacions de rails de grues, adequades per al seu ús en diferents condicions laborals. Mantenim la cooperació a llarg termini amb moltes fàbriques d’acer d’alta qualitat per assegurar la qualitat del producte estable i fiable. Ens centrem en l’experiència del client, proporcionem assessorament professional de contractació i mètodes de pagament flexibles per ajudar els clients a optimitzar els costos de contractació.





Etiquetes populars: Qu120 Acer de grues pesades, Xina Qu120 Fabricants d'acer, proveïdors, fàbrica d'acer, fàbrica





